niedziela, 28 sierpnia 2022

To i owo z gminy Dopiewo 2022 (7)

 

Tematy kluczowe: kolejna bulwersująca wycinka drzew w Dopiewie, czystość i porządek w wydaniu ZUK Dopiewo, posiedzenie wspólne Komisji RG – Strategia Rozwoju Gminy, przestrzenna ruletka

Dzisiaj chciałam przedstawić swoje refleksje po posiedzeniu wspólnym Komisji Rady Gminy Dopiewo, które miało miejsce 22 sierpnia br. Zacząć muszę jednak od innych spraw, co do których powinnam się już przyzwyczaić, ale w dalszym ciągu mnie bulwersują.

Jedną z nich jest rabunkowe traktowanie środowiska naturalnego jako coś, na co nie można nic poradzić. Nie dziwi mnie już, że zwykli mieszkańcy, jak i większość samorządowców, ochronę środowiska traktują jako zło konieczne, jakąś fanaberię. Trudno jednak przejść do porządku dziennego, jeżeli przyrodę przedmiotowo traktują ludzi wykształceni, którzy powinni być wzorem dla innych i dawać dobry przykład.

poniedziałek, 22 sierpnia 2022

Posiedzenie wspólne Komisji Rady Gminy Dopiewo 22 sierpnia 2022 r. (2)

 

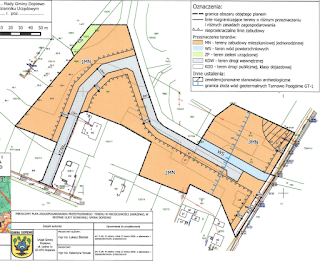
Tematy kluczowe: zawirowania na ul. Sosnowej w Zakrzewie; zabudowa zagrodowa w Dopiewie

Po dłuższym zastanowieniu, postanowiłam kontynuować analizę niektórych projektów miejscowych planów zagospodarowania przestrzennego.

Kolejnym projektem w programie Komisji i najbliższej Sesji jest uchwała, dotycząca terenów w rejonie ulic: Sosnowej i Leśnej w Zakrzewie:

niedziela, 21 sierpnia 2022

Posiedzenie wspólne Komisji Rady Gminy Dopiewo 22 sierpnia 2022 r. (1)

 

Tematy kluczowe: Żarnowiec po nowemu, Drwęsa przykładem minimalizmu, „ład” przestrzenny w Zakrzewie

Po raz pierwszy od wielu miesięcy spadł u nas porządny deszcz i do tego obyło się bez kataklizmów. Jestem tym mile zaskoczona, bo obawiałam się, że już niedługo Gmina zacznie zamieniać się w pustynię. Z pewnością znajdą się malkontenci, którzy stwierdzą, że aura zepsuła im weekend. Niewykluczone, że również niektórzy z rolników będą narzekać, że podtopiło im pola i będą domagać się od Gminy, udrożnienia rowów melioracyjnych. Z pewnością poprą ich w tym niektórzy Radni i Sołtysi.

Niestety, jest to jeden malutki plusik w morzu coraz większej liczby problemów. Wojna na Ukrainie trwa w najlepsze i nic nie zapowiada jej końca. Tzw. Zachód pomaga jej na tyle, żeby nie upadła, ale nie daje szans na zwycięstwo. A już czają się kolejne tyranie, aby siłą realizować swoje cele.

poniedziałek, 15 sierpnia 2022

Komisja Rolnictwa Rady Gminy Dopiewo 8 sierpnia 2022 r.(2) – a jednak chocholi taniec

 

Tematy kluczowe: budowa pod linią wysokiego napięcia; konflikt interesów w Dopiewie i Dopiewcu; poprawianie własnych błędów; specyficzna „życzliwość” wobec mieszkańców

Dziś dokończenie sprawozdania z posiedzenia Komisji Rolnictwa Rady Gminy Dopiewo. Pozostała część obrad, to tradycyjnie popis bezczelności i arogancji kierownika ref. planowania przestrzennego Remigiusza Hemmerlinga. Doskonale zdaje sobie on sprawę, że w dziedzinie planowania przestrzennego, większość radnych wykazuje się totalną indolencją i próbuje to w maksymalny sposób wykorzystywać.

Do tego dochodzi, kłujące wręcz w oczy, nierówne traktowanie interesantów. O ile z wielką atencją traktuje on dużych inwestorów, jak deweloperzy, właściciele baz logistycznych itp., to zwykli mieszkańcy są przez niego, zdecydowanie lekceważeni. Zastanawiam się, skąd w jednym człowieku może być tyle złej woli? Poniżej przykłady potwierdzające moją opinię o tym urzędniku.

niedziela, 14 sierpnia 2022

Komisja Rolnictwa Rady Gminy Dopiewo 8 sierpnia 2022 r.(1) – chocholego tańca ciąg dalszy?

 

Tematy kluczowe: nadanie imion i statusu pomników przyrody drzewom i alejom; jeszcze raz tymczasowa organizacja ruch, w związku z budową ronda w Dąbrówce

Ostatnie tragiczne wydarzenia, związane z zatruciem rzeki Odry pokazują, że urzędnicy różnych szczebli, zarówno samorządowi, jak i służb państwowych, to jedna z najbardziej patologicznych grup zawodowych w Polsce. Nie zamierzam wchodzić w szczegóły, zbyt dużo jest szumu w tej sprawie, jednak po raz kolejny okazało się, jak przygotowane są nasze kadry urzędnicze do reagowania w sytuacjach kryzysowych.

Ciepła posadka, wygodny fotel, duże biurko z gorącą kawą i wpływająca co miesiąc pensja, to wszystko, czym jest zainteresowany przeciętny polski urzędnik. Nie inaczej jest w gminie Dopiewo. Całe szczęście, że nie mieliśmy do czynienia z taką katastrofą, jak na Odrze. Wystarczyły 2 wolno biegające psy w Konarzewie, żeby obnażyć całą patologię gminnego samorządu - bezradność wójta.

niedziela, 7 sierpnia 2022

To i owo z gminy Dopiewo 2022 (6)

 

Tematy kluczowe: refleksja nad kondycją ludzką; ciekawostki z Sesji Absolutoryjnej - wicestarosta Tomasz Łubiński; organizacja ruchu na wariackich papierach; drogowe kumoterstwo w tle z petycją w sprawie budowy ul. Strumykowej w Skórzewie.

Zacznę trochę nietypowo, bo muszę odnieść się do niespotykanej reakcji, jaką wywołał skecz kabaretu Neo-Nówka, „Wigilia 2022”. Otóż okazało się, że mówienie prawdy jest w Polsce przejawem niesłychanej odwagi a zarazem spotyka się z gwałtownym oburzeniem osób, których ona dotyczy. Naiwnie wydawało mi się, że 32 lata po transformacji prawo do wypowiedzi, a tym samym mówienie prawdy, powinno być czymś oczywistym. Niestety, rzeczywistość okazała się inna. Potwierdza to moje przekonanie, że to nie system jest winny, tylko ludzie. I to nie wyłącznie ci, którzy trzymają ster władzy od szczebla najniższego do najwyższego. Winni są przede wszystkim sami obywatele, którzy nie reagują na patologię a często wręcz, je aprobują.